 
                           
                        倉庫を居宅に改装して二世帯住宅に~上階~/戸建リノベーション
                               
                                 
                            
長年飲食店を経営されているお客様。ご自宅は4階建で、1階部分は店舗用の倉庫にしていました。
ご夫婦で生活をおくる中、年齢を重ね、住宅内の上下移動が負担になってきました。
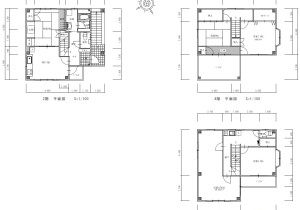
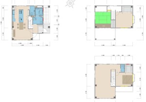
このたび子世帯が同居することになり、倉庫部分を居室に作り替えてご夫婦の居住スペースに、2階から上の部分は子世帯の居住スペースに、リフォームして完全分離の二世帯住宅にすることになりました。
1階部分のリフォームが完工し親世帯のご夫婦が移り住んだ後、2~4階のリフォームを行ないました。
子世帯の玄関は、建物外階段をあがった2階にあります。キッチンや、浴室・洗面脱衣室などの水廻りも元々2階にありましたので、階はそのまま配置を使いやすく変更しました。
和室とDKは間仕切りをなくして18帖超のLDKにしました。キッチンはアイランド型を採用。天板が広く、収納も両面を使えます。北側窓からの採光を利用しつつ外部からの視線は遮るように、キッチンの端に目隠しの壁を設けました。
3階はWICを設けた寝室と、ミニキッチンを撤去し間仕切りもなくした20帖超の洋室に。寝室の窓には、交通量の多い道路からの騒音の軽減対策のためインプラスを設けました。洋室は、将来お子様の部屋として使用する際に間仕切る想定です。
4階は、各部屋の収納の配置を変更して、見た目も使いやすさもすっきりさせました。
- 住所:
- 愛知県豊橋市大山町字西大山52番地
- 電話:
- 0120-150-564
お問い合わせの際は「Reborn東海(りぼーんとうかい)を見ました」と
一言添えて頂けると助かります!
 
                     
                   
                 
           
          

























 
                                   
                                   
                                  


