リフォームを考えるときに大切にしたい「動線」のこと
![]()
リフォームのご相談では、間取りやデザインと同じくらい「これからの暮らし方」が話題になります。家事動線や回遊動線という言葉も、住まいの計画では自然と挙がるテーマのひとつになっていますが、どれかが正解というわけではないと思います。これからどんな毎日を送りたいのか。そこから動線を考えていくことが、暮らしやすさにつながるように感じています。
暮らしやすさUPにつながる「動線」という考え方
動線とは、家の中での“動きの流れ”のことで料理や洗濯・片付け・身支度などの家事はもちろん、朝の準備や帰宅後の過ごし方、そして来客時のご案内まで、日々のさまざまな行動が含まれます。それぞれの動きがスムーズにつながっているかどうかで、体の負担も気持ちの余裕も大きく変わります。
例えば、
・キッチンからパントリーが近い
・洗濯→干す→しまうが一か所で完結する
・帰宅後すぐに収納へ行ける
・来客時に生活空間を通らずにリビングへ案内できる
こうした小さな工夫の積み重ねが、毎日の過ごしやすさにつながっていくのかもしれません。
回遊動線が人気な理由
最近は「回遊できる間取り」が人気です。ぐるっと回れることで、
・朝の混雑が起きにくい
・家族の動きが重なりにくい
・行き止まりがなくストレスが少ない
といったメリットがあります。特に、キッチンを中心に洗面室や収納へ抜けられる配置は、家事をしながら移動しやすいという声も多く聞かれます。ただし、広さや生活スタイルによってはシンプルでコンパクトな動きの方が快適なこともあります。大切なのは、流行や形に合わせることではなく、これからどんな毎日を送りたいかを整理することかもしれません。
おすすめの考え方(形よりも流れ)
動線を考えるときに大切なのは、「形」よりも「流れ」を想像することだと思います。
例えば、
◯ 洗濯動線をまとめる
洗う → 干す → しまう を近い位置にまとめることで、毎日の家事負担を軽減できます。
◯ 収納を通過点にする
玄関→収納→リビング キッチン→パントリー→洗面 のように、収納を“立ち寄る場所”にすると、家が整いやすくなります。
◯ 家族の動きと重ならない配置
朝の身支度や帰宅時間を想像しながら配置を考えると、より快適な間取りになります。
事例から見る動線の工夫
実際のリフォームでは、
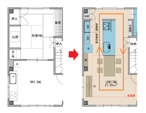
✔ ダイニングキッチンと和室をLDKに変更して回遊できるようにした事例

倉庫を居宅に改装して二世帯住宅に~上階~/戸建リノベーション|施工実績|豊橋市のリフォームなら一幸建設
✔ 水廻りと和室をリフォームして水廻りに室内干しスペースを隣接させた事例

生活スタイルの変化に合わせて/水廻りリフォーム|施工実績|豊橋市のリフォームなら一幸建設
などがあります。ヒアリングの中で暮らし方を整理した結果、回遊動線が自然と選ばれたケースです。
これからの暮らしを考えるきっかけに
リフォームは、間取りを整えること以上に、これからの暮らしを考える機会でもあります。回遊動線も、一直線の動線も、どちらかが正解というものではありません。まずは今の暮らしを振り返り、これからどのように過ごしていきたいのかを整理すること。そこから、ご家族に合った動線が少しずつ見えてくるのではないでしょうか。今の暮らしだけでなく、これからの変化も見据えて動線を考えることが、長く心地よく住み続けるためのポイントかもしれません。
- 住所:
- 愛知県豊橋市大山町字西大山52番地
- 電話:
- 0120-150-564
お問い合わせの際は「Reborn東海(りぼーんとうかい)を見ました」と
一言添えて頂けると助かります!